CENTUB® Schachtkonen rund
CENTUB® Schachtkonen rund
CENTUB® Schachtkonen rund
CENTUB® Schachtkonen rund
Cône CENTUB DN/D 800/600, H 600 mm, E600,
A0704 Art. 120793
Groupe
AH
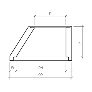
Diamètre intérieur D(mm)
600
Diamètre nominal DN (mm)
800
Hauteur H (mm)
600
Diamètre extérieur OD (mm)
1040
Epaisseur de paroi W (mm)
120
Ligne de produits
CENTUB®
Usine de production
71
Poids kg/UV
515
Swissness
Swissness
cent.Type BS rd narm. y-c. douil.manut a.M
Remarque
- Autres diamètres nominaux et hauteurs sur demande.
Etendue de la livraison
- Ancre à tête sphérique LK 1.3 inclus pour cônes à partir de UP 11+71.
- Douille M 24 inclus pour cônes à partir de UP 22.
Instructions de pose et d'installation
- Bague d'étanchiété A0709 et pâte lubrifiante A0901 nécessaires.
Downloads
Téléchargements CAO et BIM