Zurück

EXACTA Winkelplatte Eckstück Typ 1

M8002 Art. 106174
Gruppe
MM
Farbe
grau
alpha
45
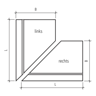
Länge L (cm)
99
Breite B (cm)
30
Höhe H (cm)
55
Bodenstärke t<sub>1</sub> (cm)
12
Wandstärke W (mm)
120
Oberfläche
glatt
Kanten
gefast
Bewehrung
bewehrt
Produktlinie
EXACTA®
HW
11, 71
Gewicht kg/VE
190
Swissness
Swissness

rechts grau glatt gefast bewehrt

L 99 cm B 30 cm H 55 cm W 12 cm a 45°