Zurück

Kabelkeller für Ladestationen

D1523 Art. 187311
Gruppe
DK
Länge L (mm)
350
Breite B (mm)
350
Höhe H (mm)
600
Wandstärke W (mm)
100
HW
14
Stk./Pal.
4
Gewicht kg/VE
135

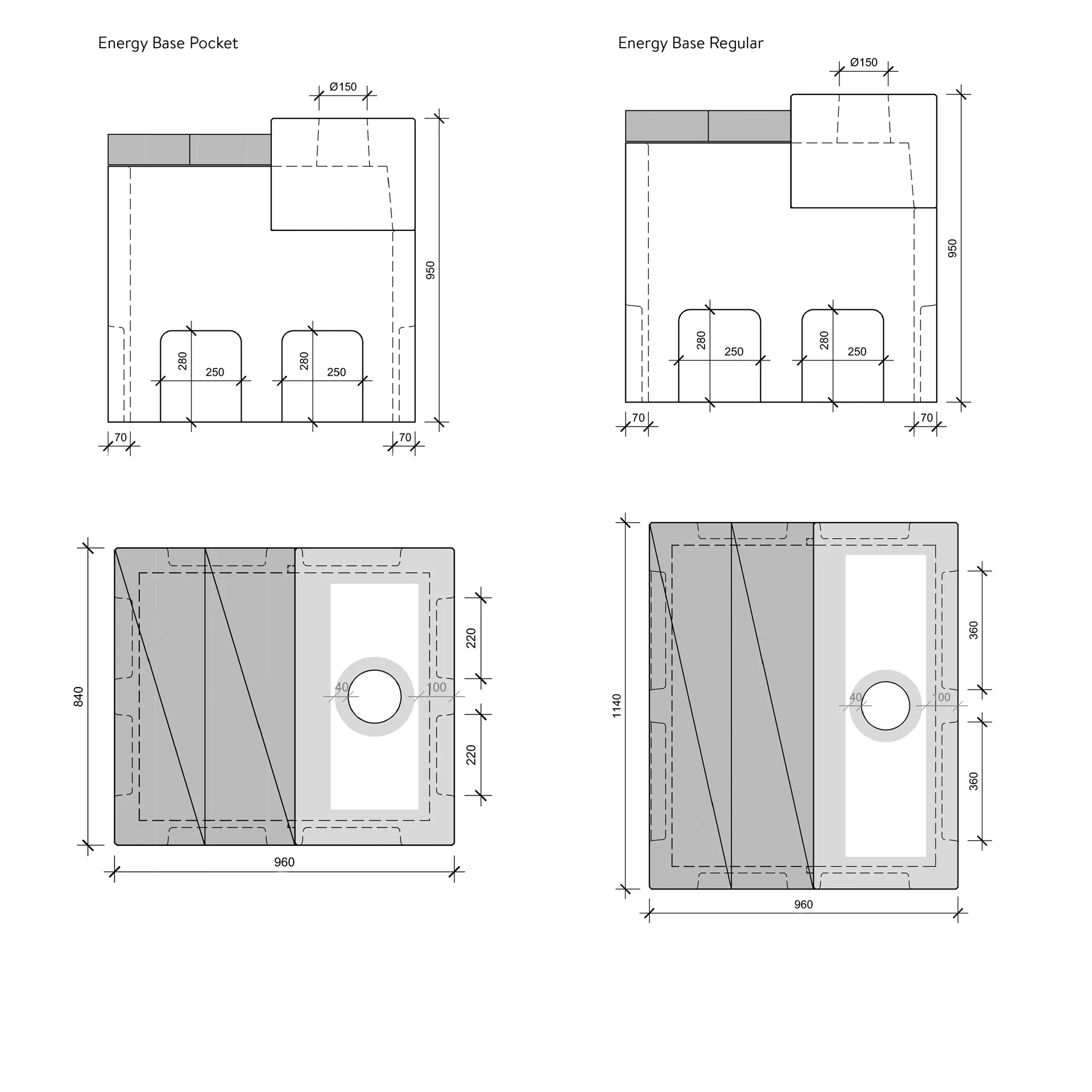
Energy Cube Typ Pocket

Recyclingbeton

L 35 cm B 35 H 60 cm W 10 cm

Brutto CHF
CHF 425.00 / Stk